Casa indipendente in vendita

Cave, Via Cesiano
€ 23.000
2 locali 2 locali
65 Mq 65 Mq
1 bagno 1 bagno

Casa indipendente in vendita

Cave, Via Cesiano

Descrizione annuncio

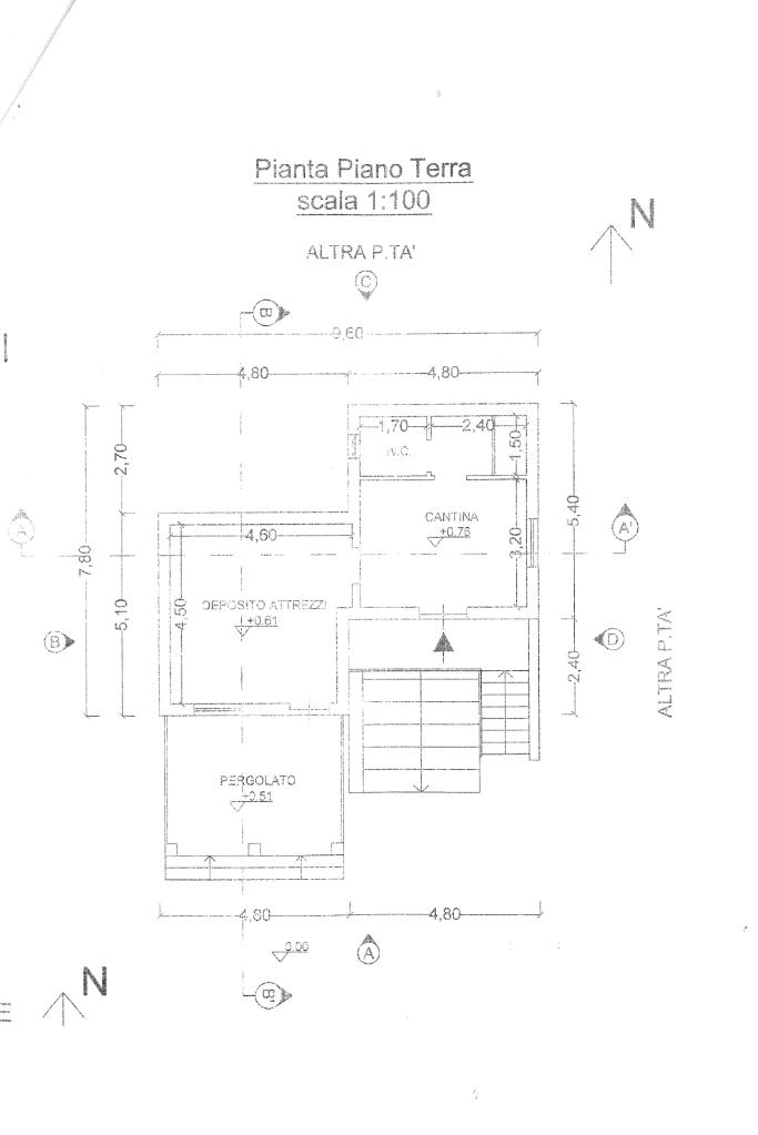
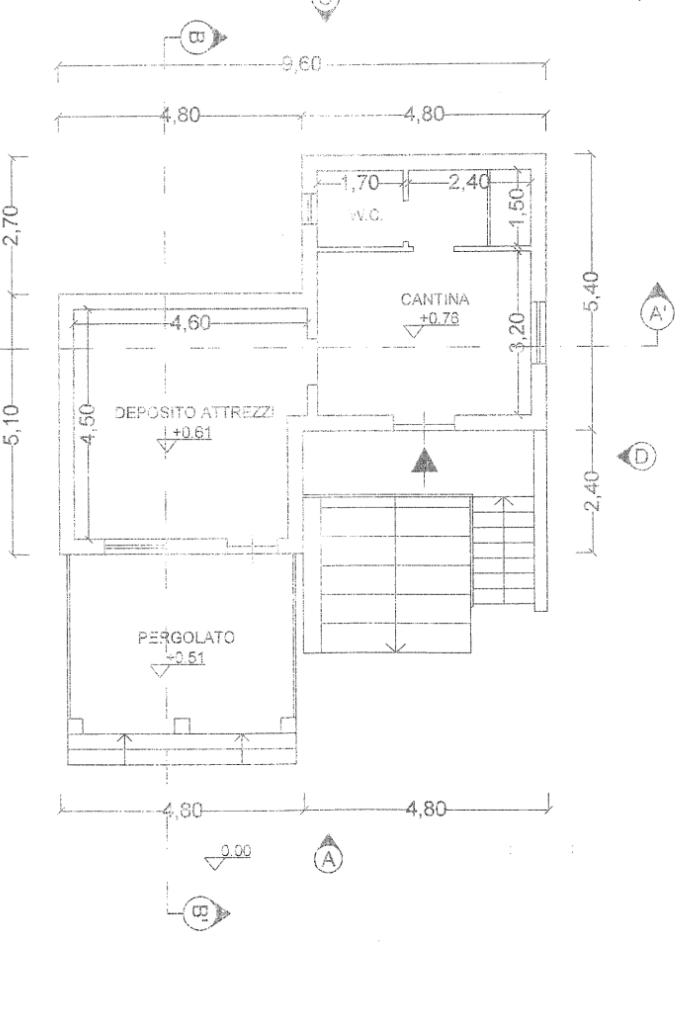
In posizione tranquilla e immersa nel verde, in zona San Bartolomeo, Via Cesiano, proponiamo in vendita rustico completamente da demolire e ricostruire con terreno di proprietà. Il fabbricato consente la realizzazione di una nuova abitazione di circa 65 mq, ideale per chi desidera creare una casa indipendente su misura, perfetta come prima casa, casa vacanze o investimento. La proprietà è circondata da circa 300 mq di terreno, spazio ideale per realizzare un giardino privato, area relax o piccolo orto, godendo della tranquillità e della natura circostante. Il contesto è riservato e caratteristico, con scorci di campagna e vegetazione che rendono l’immobile particolarmente suggestivo e adatto a chi cerca privacy e contatto con la natura, pur restando a breve distanza dai servizi principali. Ottima opportunità per chi desidera realizzare un piccolo rustico indipendente personalizzato in una zona tranquilla

Mostra tutto

Nelle vicinanze

Trasporto pubblico Trasporto pubblico
Quadrelle
Quadrelle
770 m
Inversione Civico 160/A
Inversione Civico 160/A
1,1 Km
Scuole Scuole
Scuola dell'infanzia Carlo Collodi
2,5 Km
Farmacia Farmacia
Farmacia Simeoni
2,2 Km
Supermercati Supermercati
Carrefour Market
2,5 Km
Conad
2,6 Km
Eurospin
2,6 Km
Lidl
2,8 Km
Negozi Negozi
Mizzoni
1,8 Km
Valentino il mago
1,9 Km
Piccolo forno
2,0 Km
Negozi
2,2 Km
la Coccinella
2,2 Km
Ristoranti Ristoranti
Montoni
820 m
Heaven
1,2 Km
Pizzeria "La Gioconda"
1,7 Km
Pensieri & Parole
1,9 Km
Pizzeria Luna Caprese
2,4 Km
Mostra tutto

Caratteristiche

Rif.:
61187518
Piano:
Terra con giardino di 1
Totale piani:
1
Posti auto:
5
Balconi:
1
Camere da letto:
1
Mostra tutto
Prezzo Prezzo
€ 23.000
Rata mutuo Rata mutuo
€ 109 / mese
Proponi il tuo prezzoProponi il tuo prezzo

Classe Energetica

G
G
G
G
G
G
G
G
G
Anno di costruzione:
1967
Riscaldamento:
Assente

Ti interessa visionare l'immobile?

Fissa un appuntamento  Fissa un appuntamento

Richiedi informazioni

Clicca su Leggi per aprire l'informativa
* Questi campi sono obbligatori

Calcola il tuo mutuo

Semplice e senza impegno
Anticipo

( % )
Mutuo

( % )

pochi semplici passi

inserisci i tuoi dati
Questionario completato
Grazie per aver richiesto un appuntamento senza impegno con un nostro Consulente del Credito e Assicurativo.

Hai inserito correttamente tutti i dati necessari e a breve riceverai una e-mail con un link da convalidare per inviare i tuoi dati.
Affiliato
Studio Cave Genazzano Srl
Viale Pio XII, 15 00033 Cave (RM)

Il nostro staff


  • Giulia Eufemia
    Affiliata

  • Leonardo Chialastri
    Responsabile

  • Emanuele Medoli
    Collaboratore

  • Diego Stella
    Collaboratore
Viale Pio XII, 15 00033 Cave (RM)
Zona: Cave-Genazzano
Mostra su mappa
Orari: Lunedi-Sabato 9-13, 15-19 Domenica 9:30-13
Affiliato
Studio Cave Genazzano Srl
Viale Pio XII, 15 00033 Cave (RM)

2026 Tecnocasa Franchising S.p.A. - P. IVA 08365160152 - Via Monte Bianco 60/A 20089 Rozzano (MI). Ogni agenzia ha un proprio titolare ed è autonoma. Privacy policy | Policy utilizzo | Cookie policy