Trilocale in vendita

Genazzano, Via Trento e Trieste
€ 49.000
Prezzo aggiornato
3 locali 3 locali
75 Mq 75 Mq
1 bagno 1 bagno

Trilocale in vendita

Genazzano, Via Trento e Trieste

Descrizione annuncio

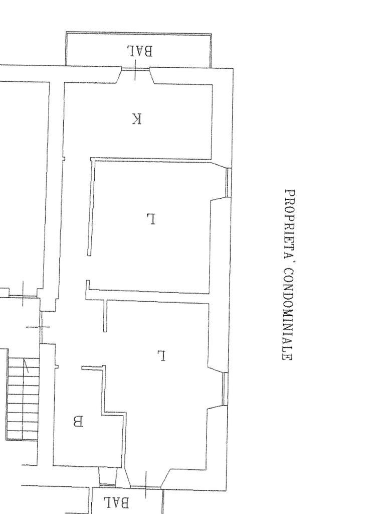
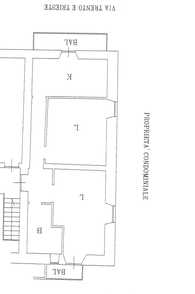
Genazzano, Via Trento e Trieste. Proponiamo in vendita appartamento composto da: ingresso, cucina abitabile, ampio salone, camera matrimoniale, bagno. Possibilità di realizzare seconda camera.
Completano la soluzione due balconi.
Termoautonomo.

CENTRALISSIMA! OTTIMA SOLUZIONE!

L'affiliato Tecnocasa Cave Genazzano Srl è un punto di riferimento per chi desidera vendere, acquistare o affittare casa nei territori di Cave e Genazzano. Il nostro team è composto da professionisti qualificati che operano nel settore immobiliare da oltre 20 anni, offrendo competenza, affidabilità e un’assistenza completa in ogni fase della anni siamo presenti in modo capillare sul territorio, dove abbiamo costruito un rapporto di fiducia con la comunità locale grazie alla profonda conoscenza del mercato e alla capacità di individuare le soluzioni più adatte alle esigenze di ogni nostra missione è garantire un servizio trasparente, sicuro e personalizzato, valorizzando ogni immobile e accompagnando chi si affida a noi con professionalità e attenzione.

Mostra tutto

Nelle vicinanze

Trasporto pubblico Trasporto pubblico
Porta Napoletana
Porta Napoletana
0 m
Piazza della Repubblica
Piazza della Repubblica
110 m
Scuole Scuole
Scuola Elementare Giuseppe Garibaldi
100 m
Scuola Media Statale Concetto Marchesi
270 m
Istituto Tecnico Industriale "George Boole"
760 m
C.P.F.P. Cave
2,2 Km
Farmacia Farmacia
Farmacia del Buon Consiglio
70 m
Parafarmacia
450 m
Supermercati Supermercati
Margherita Alimentari
80 m
Decó
700 m
Carrefour
1,1 Km
Eurospin
2,0 Km
Lidl
3,0 Km
Negozi Negozi
Look at me
40 m
Dolce Pizza
430 m
Crai
460 m
Pinocchio
510 m
Alimentari
570 m
Ristoranti Ristoranti
La vecchia Osteria
10 m
Beat
720 m
Terremoto
820 m
Da Panzone
840 m
La Sonnina
1,8 Km
Mostra tutto

Caratteristiche

Rif.:
61142759
Piano:
2 di 2 (Piano alto)
Balconi:
2
Camere da letto:
1
Arredamento:
Assente
Condizionamento:
Assente
Mostra tutto
Prezzo Prezzo
€ 49.000
Rata mutuo Rata mutuo
€ 229 / mese
Proponi il tuo prezzoProponi il tuo prezzo

Classe Energetica

G
G
G
G
G
G
G
G
G
Anno di costruzione:
1967
Riscaldamento:
Autonomo
Tipo impianto:
A radiatori
Tipo alimentazione:
Metano

Prezzo ridotto di €1 (2%%)

Ti interessa visionare l'immobile?

Fissa un appuntamento  Fissa un appuntamento

Richiedi informazioni

Clicca su Leggi per aprire l'informativa
* Questi campi sono obbligatori

Calcola il tuo mutuo

Semplice e senza impegno
Anticipo

( % )
Mutuo

( % )

pochi semplici passi

inserisci i tuoi dati
Questionario completato
Grazie per aver richiesto un appuntamento senza impegno con un nostro Consulente del Credito e Assicurativo.

Hai inserito correttamente tutti i dati necessari e a breve riceverai una e-mail con un link da convalidare per inviare i tuoi dati.
Affiliato
Studio Cave Genazzano Srl
Viale Pio XII, 15 00033 Cave (RM)

Il nostro staff


  • Giulia Eufemia
    Affiliata

  • Leonardo Chialastri
    Responsabile

  • Emanuele Medoli
    Collaboratore

  • Diego Stella
    Collaboratore
Viale Pio XII, 15 00033 Cave (RM)
Zona: Cave-Genazzano
Mostra su mappa
Orari: Lunedi-Sabato 9-13, 15-19 Domenica 9:30-13
Affiliato
Studio Cave Genazzano Srl
Viale Pio XII, 15 00033 Cave (RM)

2026 Tecnocasa Franchising S.p.A. - P. IVA 08365160152 - Via Monte Bianco 60/A 20089 Rozzano (MI). Ogni agenzia ha un proprio titolare ed è autonoma. Privacy policy | Policy utilizzo | Cookie policy